【物件】esk050798 東京都西多摩郡瑞穂町 

| 種目 | 貸倉庫 | 物件NO | esk050798 |
| 賃料 |
4,400,000円(税込) |
共益費 |
- |
| 敷金 |
月額賃料の3ヶ月分(非課税) |
礼金 | 月額賃料の1ヶ月分(税込) |
| 償却 | - | 坪単価 |
4,4000円(税込) |
| 管理費 | - | その他一時金 |
仲介手数料:月額賃料の1ヶ月分(税込) |
| 造作譲渡 | - | 用途地域 | 工業地域 |
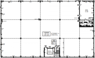
| 賃貸面積 |
1階 倉庫:465坪 事務所・トイレ:35坪 2階 倉庫:465坪 事務所・トイレ:35坪 合計:1,000坪 |
交通 |
圏央道「青梅」IC約3.4km 圏央道「入間」ICより約5.2km JR八高線「箱根ヶ崎」駅より徒歩約27分 |
| 竣工 |
2026年2月(予定) |
駐車場 |
- |
| 建物名 | - | 階建/階 | 地上2階建 |
| 敷地面積 |
- |
建物構造 |
鉄骨造 |
| 床荷重 |
床耐荷重:1.0t/㎡ |
天井高 |
梁下有効高さ:5.5m以上 |
| 特記事項 |
※市街化調整区域のため用途変更不可 40ftコンテナ車進入可 柱スパン:11.0×10.6m(一部未満区画あり) |
||
| 設備 |
荷物用EV1基:W3.0×D3.0×H2.5m(3.0t) 男女別トイレ、流し台、キュービクルあり |
||
| 備考 |
営業倉庫取得可 |
||
| 契約期間 | 相談(普通賃貸借契約) | 条件等 |
保証会社加入要 水道光熱費、エレベーター・電気設備・消防設備点検等の維持管理費は借主負担 ※本物件は計画段階につき、変更が生じる可能性がございます。
|
| 使用開始日 | 2026年3月予定 | 現況 | - |
| 更新料 |
- |
物件番号 | esk050798 |
| 情報公開日 | 2025年12月1日 | 次回更新予定日 |
2026年2月1日 |









































